
Neubau Fahrstuhl und Zugang SWG Nordhausen mbH
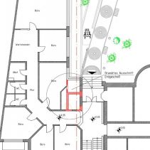
Die Geschäftsstelle der SWG Nordhausen sollte einen barrierefreien Zugang sowie einen Fahrstuhl über alle Geschossebenen erhalten. Dieser schwierigen Planungs- und Koordinationsaufgabe nahmen wir uns an. Problematisch war, dass nur außerhalb der Geschäftszeiten gearbeitet werden konnte, da der Geschäftsablauf zu keiner Zeit beeinträchtigt werden durfte. Doch alle Firmen zogen an einem Strang, so dass auch dieses Projekt in kürzester Zeit realisiert werden konnte. Unsere Leistungen: Planung, Ausschreibung und Bauleitung
Ausführungszeitraum: 2012
Auftraggeber: SWG Nordhausen mbH
Gesamtinvestition: 250.000 EUR
Auftraggeber: SWG Nordhausen mbH
Gesamtinvestition: 250.000 EUR












zu Projekten | Startseite